Marion Full Home Renovation
Our clients approached us seeking a full home renovation of their Marion residence. This large and busy family embarked on a journey to transform their forever home.
The homeowners explained that after almost two decades, the spaces had become dated and felt worn, while the layout no longer suited large family gatherings or everyday living. They wanted a bright and welcoming home with neutral tones and a modest, functional feel. Their goal was to create generous space for entertaining, particularly to accommodate their extendable 16-seat dining table during frequent gatherings.
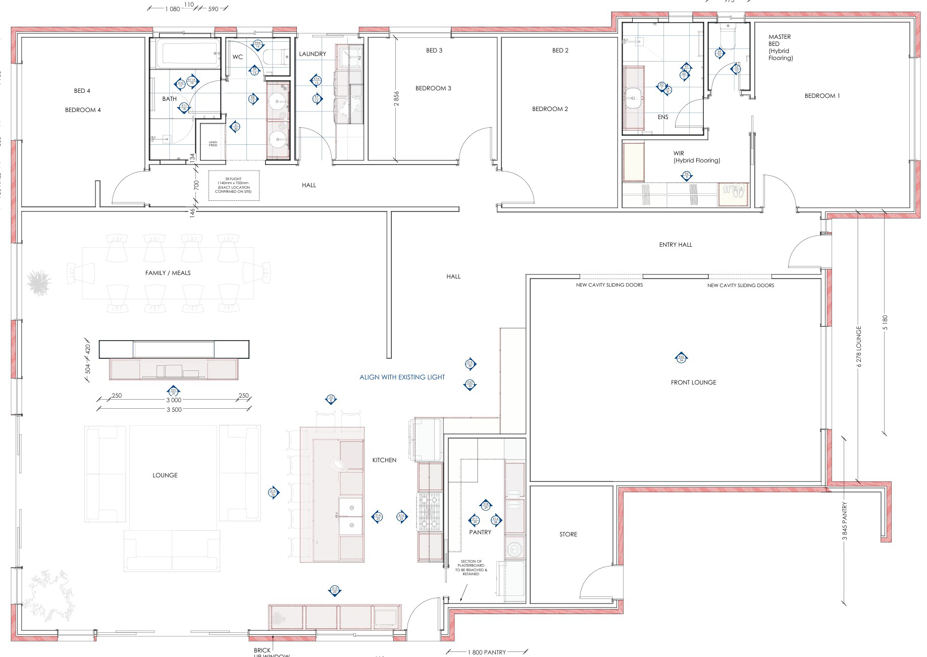
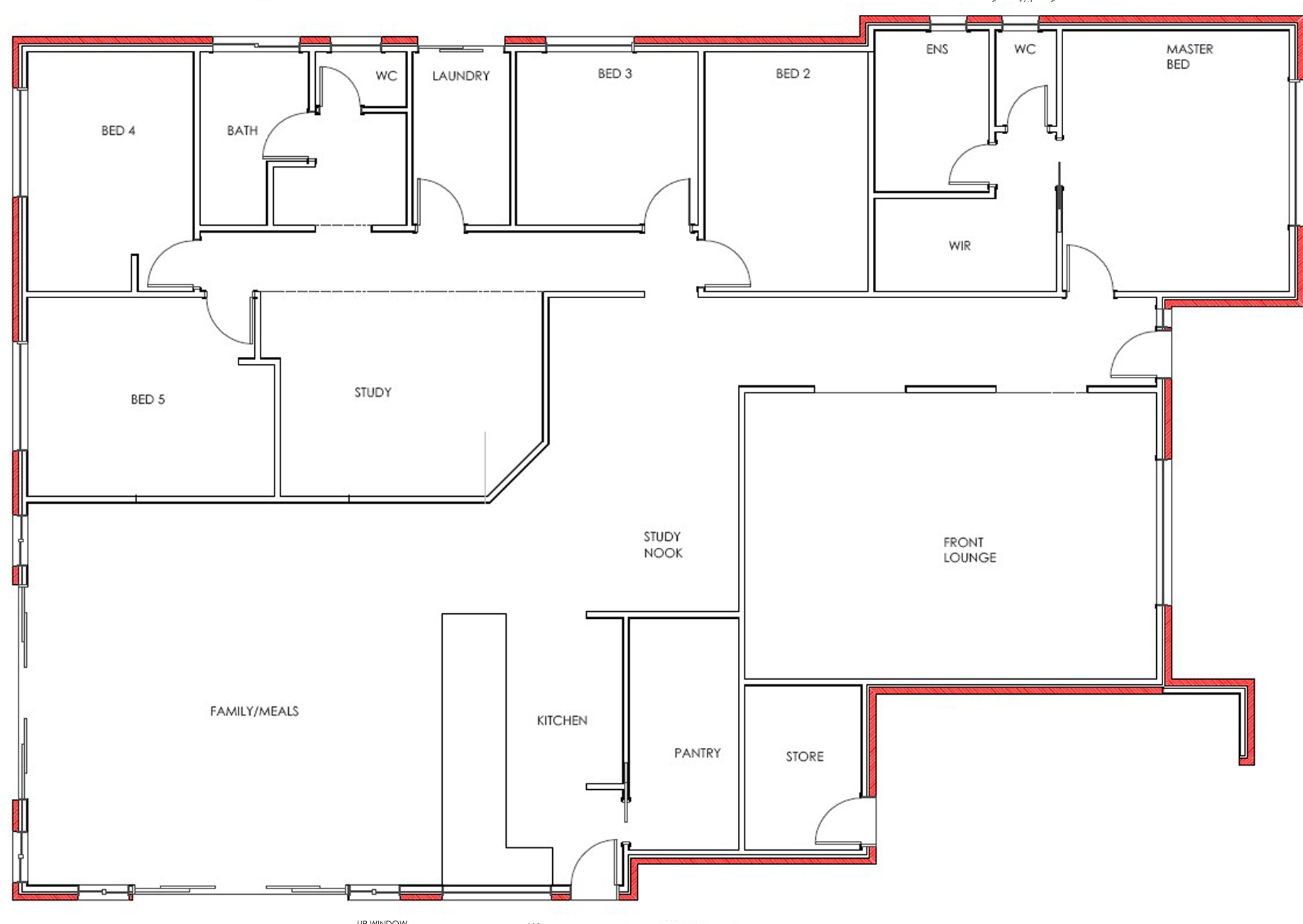
The original floorplan restricted movement, especially in the kitchen and dining areas. Our clients mentioned that family meals felt cramped, and that with a big family, they always seemed to run out of space. Additionally, unused rooms such as bedroom five and the study limited the home’s overall functionality.
Open Plan Living Design
Our Design Specialist began by reconfiguring the layout, which involved removing walls between the living area, bedroom five, and the study. The new open plan was thought through to allow the entire family to gather comfortably across the kitchen, living, and dining areas.
The new kitchen design focuses on both functionality and scale. It features a large island with an overhang, supporting casual dining and preparation. Custom joinery beneath the island houses a bin, dishwasher, and cutlery storage. On the opposite side, cabinets with adjustable shelving increase storage capacity.
Along the right kitchen wall, we included deep drawers and integrated power points, which provide practical appliance storage. Behind the kitchen is the walk-in pantry with wall-to-wall open shelving. It accommodates a second fridge, a robot vacuum, and large storage tubs for dog food.
With the new floorplan configuration, we replaced the hard-to-access attic above the study with floor-to-ceiling joinery, which extends from the kitchen into the hallway. As a result, all the seasonal gear is neatly stored away, ready for the next holiday.
The living and dining areas are designed around a double-sided fireplace, which forms a key part of the brief. Our clients wanted to capture a sense of their travels, particularly the atmosphere of ski resorts with a warm and inviting fireplace. This feature defines each dining and living zone while maintaining a connected and open feel. The dining area comfortably accommodates the extendable 16-seat table, allowing the family to come together during everyday meals and special occasions.
This home renovation expanded the living space from 44m² to 82m², creating generous circulation space that improves usability.
Property Improvements
During the early stages, our Building Supervisor identified moisture ingress around the slab and footings. Significant work was done to repair this issue and bring it up to standard. This work involved the stormwater and water tank systems, followed by treating and waterproofing the slab edges to protect the structure.
These findings highlight the value of working with experienced renovators. By addressing these areas early, we ensured the home was safe, secure, and built to last. The homeowners valued the attention given to these works, which ensured their home was protected for the long term.
To support this full transformation, the family temporarily moved out during the building works, returning to a fully transformed home ready to enjoy.
Design Elements & Finishes
The kitchen and living areas reflect a contemporary Australian residential aesthetic, while also embracing soft minimalism. Based on our clients’ personal style, we selected a neutral palette of warm off-whites and soft greens. Rather than relying on strong contrast, subtle tonal variation adds depth, while timber-look flooring introduces warmth and grounds the space.
We designed bespoke joinery using Polytec profiles, Momo handles in brushed nickel and porcelain benchtops to ensure durability and ease of maintenance. For the kitchen island, a full slab with a 40mm mitred edge in the Aluminous colour was chosen, as it accommodates the 7-seat island overhang.
Clean lines and uncluttered surfaces balance natural textures, including terrazzo-look tiles and ResiPlank Blackbutt finished flooring, which create a calm and inviting atmosphere.
A Hamptons style emerges through VJ panelling across the walls, while the Real Flame double-sided glass fireplace anchors both the living and dining areas. In addition, it enhances the overall atmosphere with warmth and presence. Above the fireplace, a 77-inch television sits, while a custom unit below houses entertainment systems, games, and accessories, maintaining a clean and organised space.
Bathroom & Laundry Renovation
The bathrooms and laundry layout already suited the family, therefore we focused on enhancing functionality and comfort. The main bathroom follows a linear layout, where the vanity, shower, and bath are clearly zoned for efficiency. At the entrance, we designed a custom double vanity using Polytec Prime Oak in Woodmatt, paired with porcelain benchtops and terrazzo feature tiles.
Above, two illuminated oval mirrors with touch sensor lighting and demisters support the family during busy mornings. In addition, an LED strip light below the vanity, with sensor activation, provides comfort during the night.
The separate shower and bath improve usability, while the double vanity supports shared use without compromising space. The shower features terrazzo tiles, brushed nickel tapware, and a built-in niche for practical storage. A low inset bathtub allows safe and easy use for younger family members, while full-height tiling ensures durability and easy maintenance.
Opposite, floor-to-ceiling cabinetry offers generous linen storage, keeping the space organised. The ensuite and laundry follow a consistent design approach. Similar tiles, light tones, and brushed nickel tapware create cohesion across the home. Lastly, in the hallway, we installed a skylight, which transforms the previously dark walkway with natural light.
Transformation & Benefits
Brilliant SA completed a full internal transformation, including the kitchen, living areas, bathrooms, laundry, ensuite, walk-in robe, as well as flooring and painting throughout.
Our clients described the fireplace as a perfect addition, especially during colder days. Their grandchildren gathered nearby, spending hours playing in the warmth, which brought a sense of comfort to the space. This renovation reshaped how the family lived in their home. They hosted their first family gathering with ease and shared how much more functional and spacious the living areas felt.
Key Elements:
Bespoke joinery: Polytec Ascot profiles thermolaminated in Gossamer white with Momo Sense Mini D Handles in Brushed Nickel in the kitchen and Polytec Prime Oak board in Woodmatt finish in the bathroom.
Tiles: Cerbis Florence green splashback tiles, Italia Ceramics white matt and terrazzo looking tiles.
Flooring: ResiPlank Vinyl flooring in Highland Blackbutt by Terra Mater.
Appliances: Rawsons Real Flame built-in double-sided gas fireplace.
Skylight: Solatube Velux Fixed Roof Window
Accessories: Routleys fittings, Caroma CLARK bathtub, Gatsby mirror cabinets by Remer
- Designed and built by the Brilliant SA Team
- Designer: Jo Niederer
- Supervisor: Livio Kuhar
- Photographer: Art Department Creative
#2486































